238 ST. LOUIS - $350,000.00

238 ST. LOUIS,Windsor - $350,000 - Directions

| | MLS #: | 26003013 | | Price: | $350,000.00 | | Online: | https://www.ida sproule.com/pro perty-29348849 |
|  |
Directions
Property Specs
Price$350,000.00
CityWindsor, ON
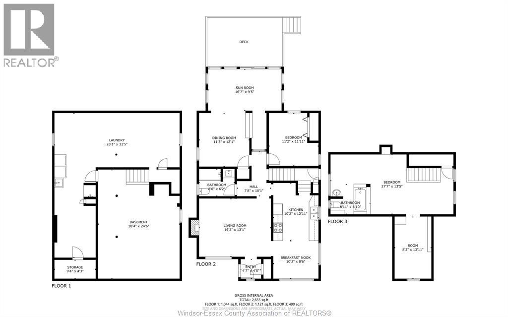
Bed / Bath3 / 2 Full
Address238 ST. LOUIS
Listing ID26003013
ConstructionBrick
FlooringHardwood
FireplaceWood, Conventional
ParkingOther
Land Size40 X 139.66 FT
TypeHouse
StatusFor sale
Extended Features:
Features Side DrivewayOwnership FreeholdAppliances Dryer, Refrigerator, Stove, WasherCooling Central air conditioningFoundation BlockHeating Forced airHeating Fuel Natural gas
Details:
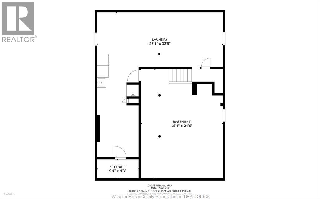
NESTLED IN THE FIRST BLOCK OFF RIVERSIDE DRIVE, THIS BRICK STOREY & A HALF HOME AWAITS YOUR OWN PERSONALIZATION. YOU CAN COUNT ON THE MODERN ASSETS OF FORCED AIR, CENTRAL AIR & A SUNROOM ADDITION, WHILE STILL HAVING THE ORIGINAL HARDWOOD FLOORS, COVE CEILINGS, AND A NATURAL FIREPLACE INCLUDING ITS WOODEN MANTLE & SURROUND. CONVENIENTLY, THERE IS A MAIN FLOOR BEDROOM ALONG WITH A SEPARATE AREA THAT CAN BE RESTORED TO A SECOND BEDROOM, OR UTILIZED AS A DINING AREA. UPSTAIRS, THE PRIMARY BEDROOM FEATURES AN ENSUITE BATH WITH JACUZZI, AND AN ADJOINING SITTING AREA WITH CIRCLE TOP WINDOW THAT CAN SERVE AS A NURSERY OR FUTURE WALK IN CLOSET. ENJOY THE LARGE, MAINFLOOR SUNROOM ADDITION. PRIVATE DRIVEWAY LOCATED ON RIGHT/SOUTH SIDE. RECEIPTS FOR BASEMENT WORK BY JOJACKS ARE AVAILABLE. (id:4555)
topGallery
Displaying 1 through 44 of 44 of 44 in gallery.
top LISTING OFFICE:
RE/MAX Preferred Realty Windsor, Mary Hrovat